CROQ'IMMO Agence
Télécharger la fiche

Appartement 3 pièce(s) 2 chambre(s) 87.2 m²

Toulouse (31200)
250 000 € Référence 104

A propos de ce bien

VENDU - Toulouse, Quartier Roseraie (proche de la route d'Agde, 8 minutes à pied du métro des argoulets, ligne A)

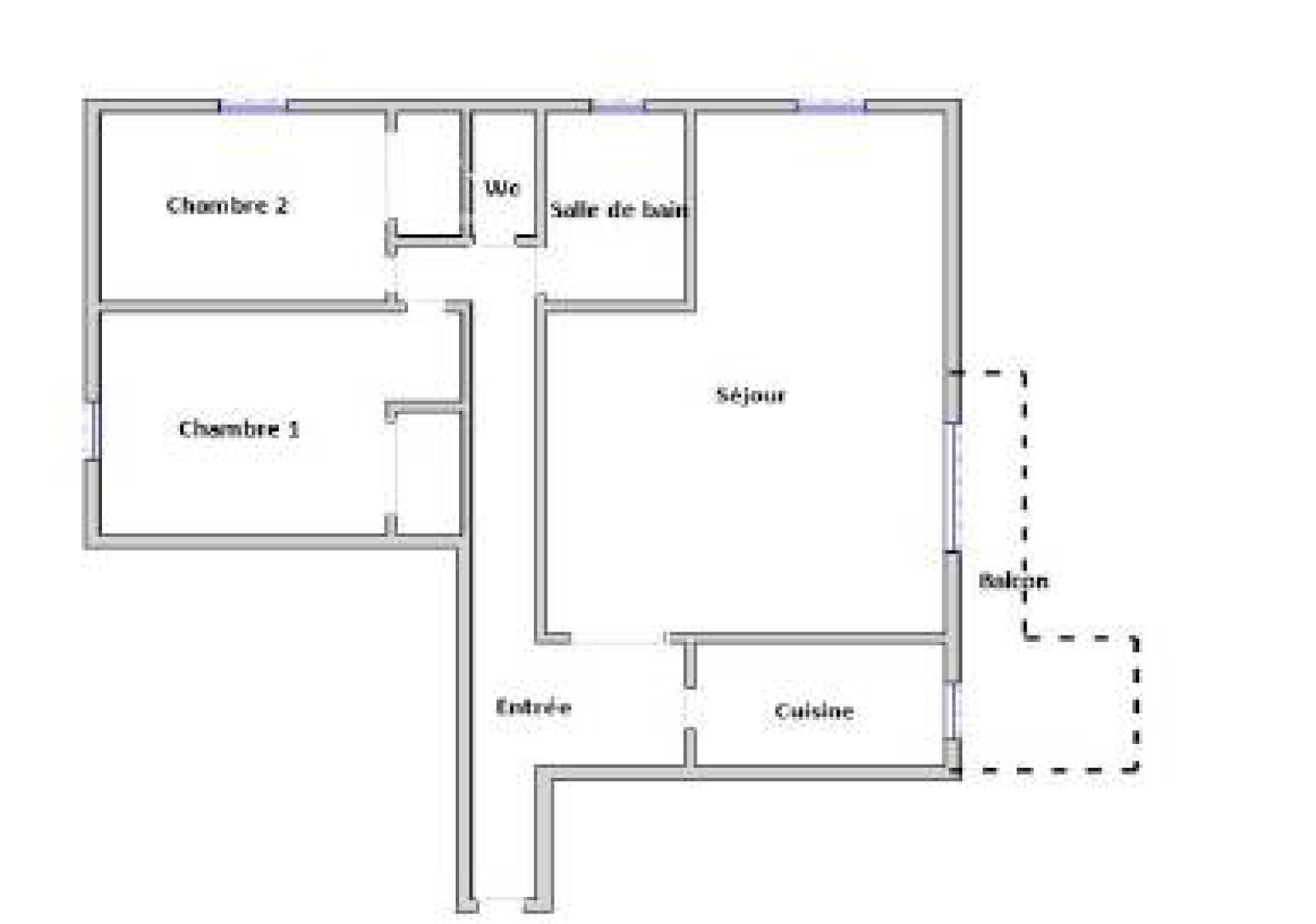
Grand appartement lumineux 3 pièces de 87 m² avec balcon, parking privatif et cellier de 6 m².

Situé au 2eme étage sur 4 avec ascenseur d'une résidence sécurisée et bien entretenue (ravalement de façade réalisé récemment).

Beau séjour lumineux offrant une superficie de 32 m² (double exposition) ouvrant sur un balcon de 7 m²; Cuisine aménagée de 8 m² ouvrant sur ce même balcon; 2 grandes chambres de 14 et 13,5 m² avec placards; Salle de bains de 5 m²; WC indépendant; Grande entrée de 13 m² permettant l'accès à l'ensemble des pièces.

Carrelage au sol dans la cuisine et la salle de bains, parquet dans les autres pièces.

Climatisation réversible de marque Mitsubishi dans le séjour et la partie nuit.

Proximité des commerces, accès rapide au périphérique, 3 stations du métro Gare / Matabiau à proximité de Jolimont et des Allées Jean Jaurès.

Informations financières : Charges de copropriété, environ 110 euros / mois (22appartements sur le bâtiment soit 22 lots principaux) et taxe foncière 1489 euros.

Caractéristiques de ce bien

  • Surface 87,20 m²
  • carrez 87 m²
  • séjour 32 m²
  • 2 chambre(s)
  • 1 salle(s) de bain
  • cuisine séparée
  • Chauffage individuel : radiateur (electrique)
  • 1 parking(s)
  • 2ème étage
  • 4 étage(s)
  • ascenseur
  • cave
  • balcon
  • interphone

Diagnostics énergétiques

Consommation énergétique
A B C D E F G
Emission de gaz à effet de serre
A B C D E F G
DPE en cours

Informations financières

Prix de vente honoraires TTC inclus 250 000 €
Taxe foncière annuelle 1 489 €

Informations de copropriété

Copropriété Oui
Nombre de lots 180
Quote part annuelle des charges 1 320 €

Calcul des mensualités

* Champs obligatoires