CROQ'IMMO Agence
Télécharger la fiche

Appartement 2 pièce(s) 1 chambre(s) 40 m²

Blagnac (31700)
139 100 € Référence 107

A propos de ce bien

DEJA VENDU - Blagnac à deux pas du tramway et des commerces.

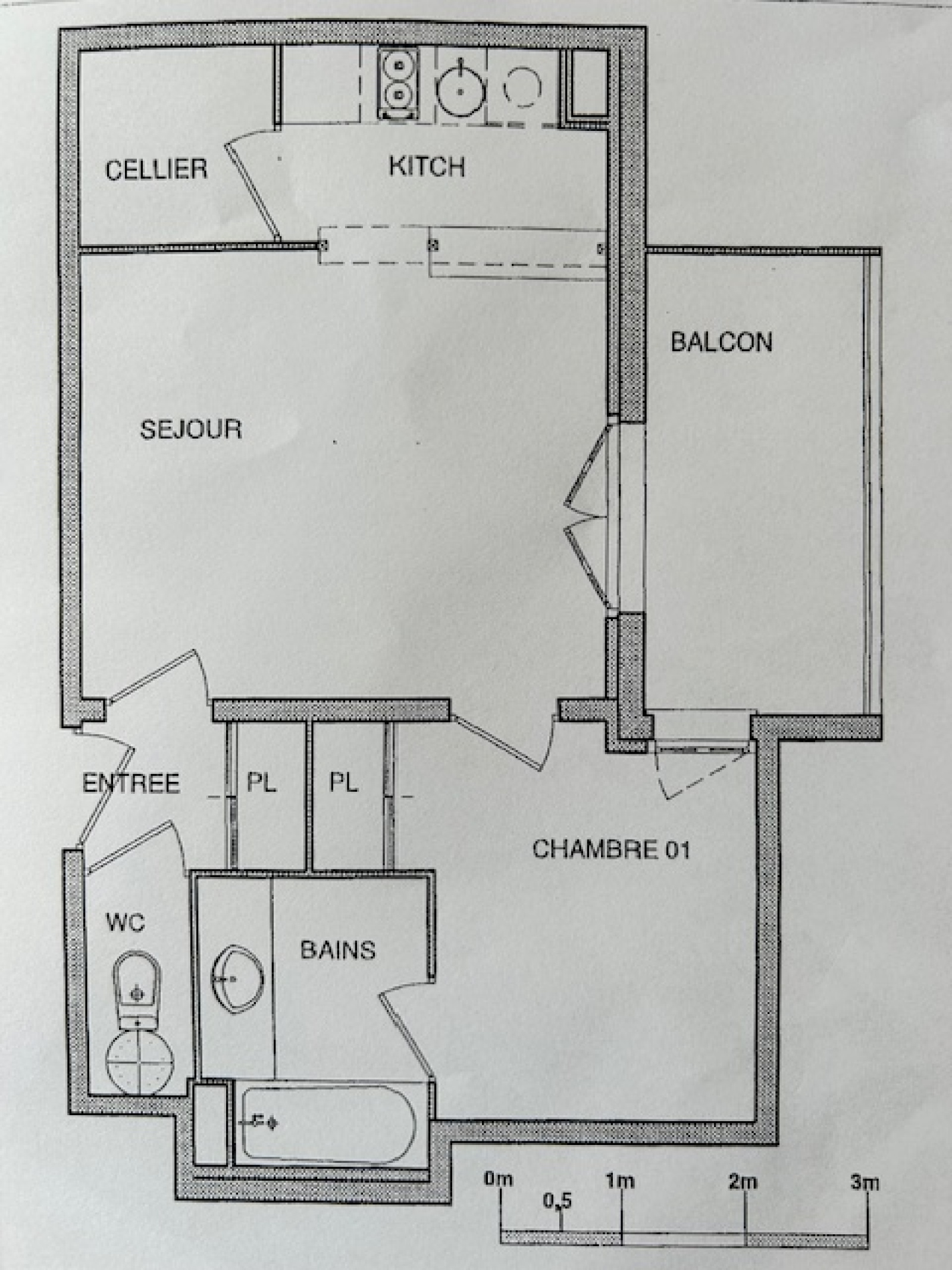
Appartement 2 pièces d'environ 40m² dans une belle résidence de standing des années 2000 (ravalement de façade réalisé récemment).

En 2eme étage avec ascenseur (environnement calme).

Vous serez séduit par l'agencement de cet appartement offrant un séjour de 19m² ouvrant sur une grande terrasse couverte de 10m²; Chambre de 9.5m² avec placards et grande salle de bains; WC indépendant; Entrée avec placards.

De plus vous apprécierez le cellier attenant à la cuisine et la place de parking en sous/sol !

Autres informations: Double vitrage; Volets roulants manuel; Carrelage au sol; Chauffage électrique; Piscine dans la copropriété.

Informations financières : Charges de copropriétés 80€/mois; Taxe Foncière 1146€/an.

Accès rapide à l'aéroport Toulouse / Blagnac ; Proche des bassins d'emplois AIRBUS (Tournefeuille /Saint Martin) ... ; Accès rapide à Purpan (Hôpital et écoles) ainsi qu'au centre ville de Toulouse (quartier Cartoucherie / Saint Cyprien / Amidonniers-Compans). 99 lots principaux dans la copropriété.

Idéal pour un pied à terre, un investissement locatif; votre résidence principale ou encore pour les études de vos enfants... EMPLACEMENT DE QUALITÉ

Caractéristiques de ce bien

  • Surface 40 m²
  • carrez 39 m²
  • 1 chambre(s)
  • 1 salle(s) de bain
  • construit en 2000
  • cuisine américaine
  • Chauffage collectif : radiateur (electrique)
  • 2ème étage
  • 4 étage(s)
  • ascenseur
  • terrasse
  • interphone

Diagnostics énergétiques

Consommation énergétique
A B C D E F G
Emission de gaz à effet de serre
A B C D E F G

Montant estimé des dépenses annuelles d'énergie de ce logement pour un usage standard est compris entre 530 € et 750 € . 2000 étant l'année de référence des prix de l'énergie utilisés pour établir cette estimation.

Informations financières

Prix de vente honoraires TTC inclus 139 100 €
Prix de vente honoraires TTC exclus 130 000 €
Honoraires TTC à la charge acquéreur 7 %
Charges 76 €
Taxe foncière annuelle 1 146 €

Informations de copropriété

Copropriété Oui
Nombre de lots 280
Quote part annuelle des charges 913 €
Statut du syndic Pas de procédure en cours

Calcul des mensualités

* Champs obligatoires