CROQ'IMMO Agence
Télécharger la fiche
Nouveauté

Appartement 2 pièce(s) 31.14 m²

Toulouse (31300)
119 840 € Référence 113

A propos de ce bien

DEJA VENDU

Toulouse - Quartier Purpan à deux pas du tramway/bus,des écoles et hopital.

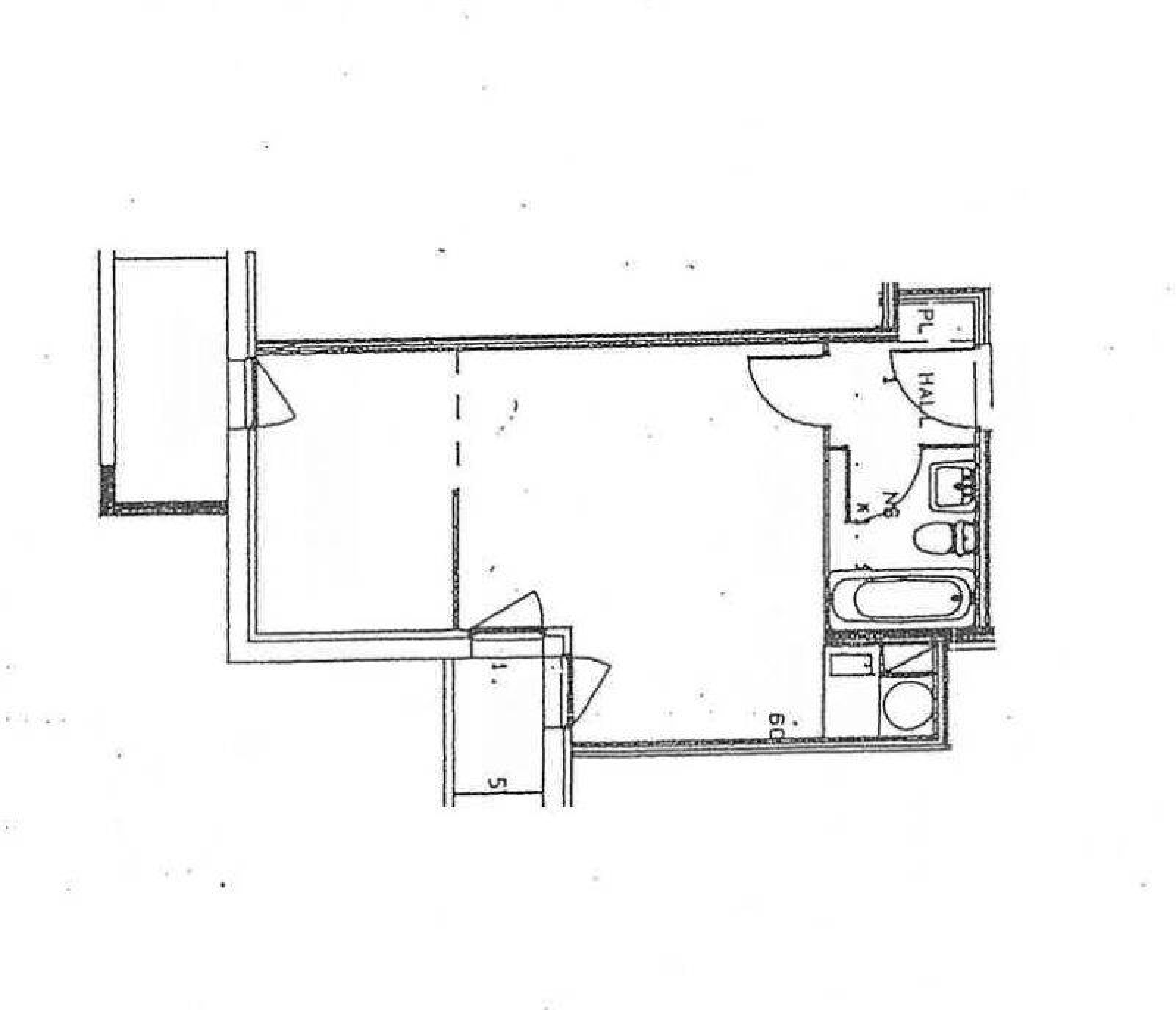
Appartement de type 1Bis d'une superficie de 31m² avec deux balcons + parking privé et cellier.

Au 2eme étage/4 avec ascenseur d'une résidence des années 1990.

Séjour avec kitchenette donnant sur balcon; Espace nuit ouvrant sur un deuxieme balcon (possible de cloisonner afin de créer une chambre); Entrée avec placard; Salle de bains avec WC.

VENDU LIBRE DE TOUTES OCCUPATIONS - PREVOIR TRAVAUX DE RAFRAICHISSEMENT - POSSIBLE DE LOUER EN MEUBLE 600/MOIS

Autres informations : Chauffage individuel électrique; Volets roulants manivelles.

Informations financières : Charges de copropriété, environ 65 euros / mois (nombre de lots d'habitations 86) et taxe foncière 804 euros.

Idéal pour de l'investissement locatif, pied à terre, résidence principale, logement étudiant. A DECOUVRIR !

Proches de nombreuses écoles, de l'hopital Purpan, de l'accès Blagnac (AIRBUS); Accès très rapide au centre ville (Saint Cyprien, Patte d'oie, Cartoucherie...) avec le tramway/bus/vélo).

Caractéristiques de ce bien

  • Surface 31,14 m²
  • 1 salle(s) de bain
  • construit en 1990
  • kitchenette
  • Chauffage individuel : convecteur (electrique)
  • 1 parking(s)
  • 2ème étage
  • 4 étage(s)
  • ascenseur
  • cave
  • balcon
  • interphone

Diagnostics énergétiques

Consommation énergétique
A B C D E F G
Emission de gaz à effet de serre
A B C D E F G

Montant estimé des dépenses annuelles d'énergie de ce logement pour un usage standard est compris entre 490 € et 700 € . 2021 étant l'année de référence des prix de l'énergie utilisés pour établir cette estimation.

Informations financières

Prix de vente honoraires TTC inclus 119 840 €
Prix de vente honoraires TTC exclus 112 000 €
Honoraires TTC à la charge acquéreur 7 %
Charges 65 €
Taxe foncière annuelle 804 €

Informations de copropriété

Copropriété Oui
Nombre de lots 86
Quote part annuelle des charges 800 €
Statut du syndic Pas de procédure en cours

Calcul des mensualités

* Champs obligatoires